| 募集区画 | 面積 | 賃料 | 共益費 | 管理費 | 保証金 | 敷金 | 敷引 | 礼金 | 入居可能日 |
|---|---|---|---|---|---|---|---|---|---|
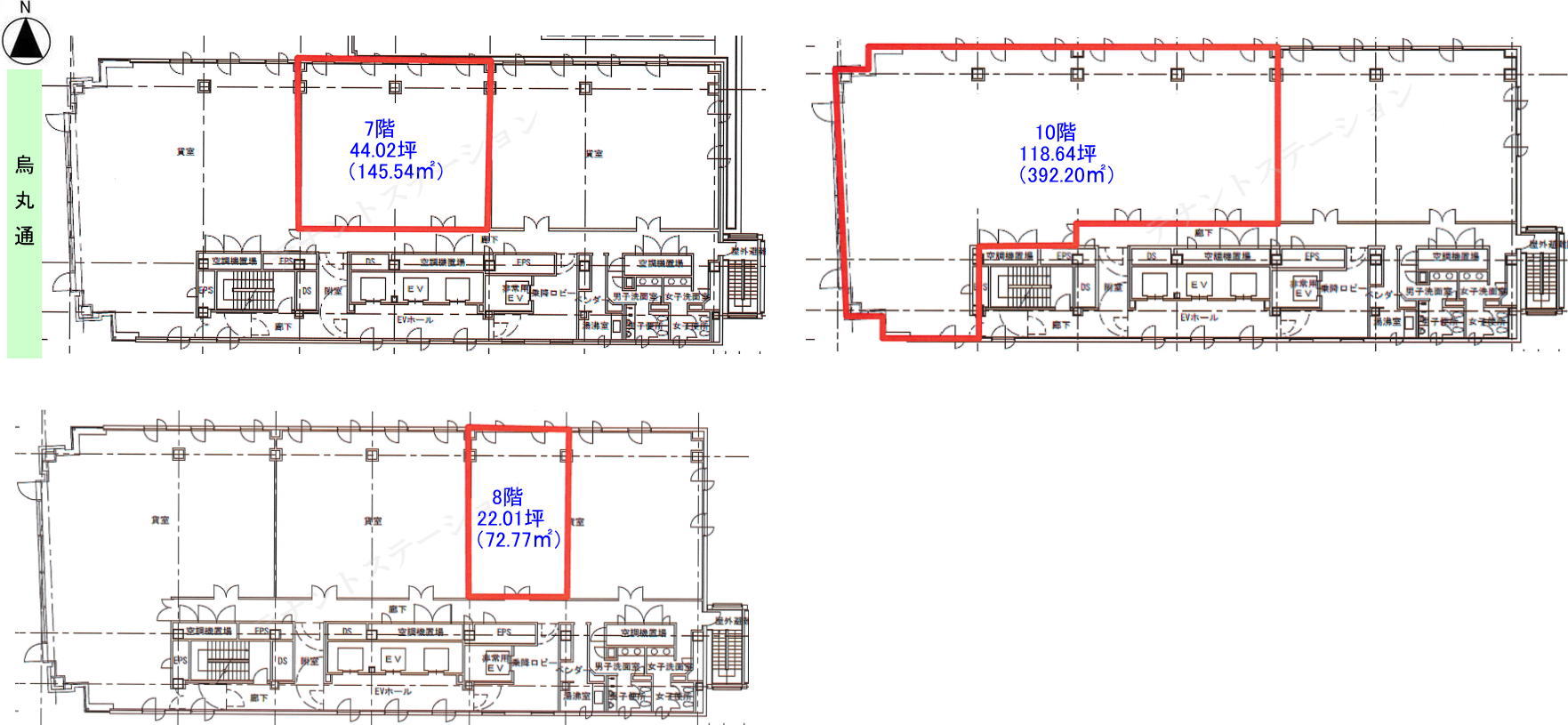
| 7階 | 44.02坪 (145.54㎡) |
ご相談 | 3,000円/坪 | 12ヶ月 | 令和8年4月1日~ 入居可能予定 |
||||
| 8階 | 22.01坪 (72.77㎡) |
ご相談 | 3,000円/坪 | 12ヶ月 | 令和8年3月1日~ 入居可能予定 |
||||
| 10階 | 118.64坪 (392.20㎡) |
ご相談 | 3,000円/坪 | 12ヶ月 | 令和8年3月1日~ 入居可能予定 |
| *賃料・共益費には別途消費税がかかります。 |
|---|















★烏丸通に面す