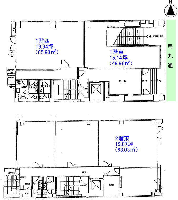
| 募集区画 | 面積 | 賃料 | 共益費 | 管理費 | 保証金 | 敷金 | 敷引 | 礼金 | 入居可能日 |
|---|---|---|---|---|---|---|---|---|---|
| 1階東 | 15.14坪 (49.96㎡) |
211,960円 (14,000円/坪) |
45,420円 (3,000円/坪) |
賃料の12ヶ月分 | ご相談 | ||||
| 1階西 | 19.94坪 (65.93㎡) |
279,160円 (14,000円/坪) |
59,820円 (3,000円/坪) |
賃料の12ヶ月分 | ご相談 | ||||
| 1階 東+西 | 35.08坪 (115.89㎡) |
491,120 (14,000円/坪) |
105,240円 (3,000円/坪) |
賃料の12ヶ月分 | ご相談 | ||||
| 2階東 | 19.07坪 (63.03㎡) |
228,840円 (12,000円/坪) |
57,210円 (3,000円/坪) |
賃料の12ヶ月分 | 令和8年1月~ 入可能予定 |
*賃料・共益費には別途消費税がかかります










